Ein eigenes Stockwerk für Ihr Unternehmen
















Objektbeschreibung
TOP Lage - Bahnhofsnähe - Eigenes Stockwerk
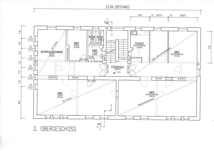
Das Objekt befindet sich in der Schubertstraße in Bahnhofsnähe. Das Büro erstreckt sich über das gesamte 2. OG und umfasst 4 Büroräume, einen Besprechungsraum, eine Teeküche sowie 2 Toiletten.
Mietkosten für die 222,32m² à € 9,37/m² sind € 2.083,14 zuzüglich Betriebskosten und Heizkosten Akonto von € 600,26 ergeben eine Gesamtbelastung monatlich von € 2.683,40 netto.
Flächenaufstellung:
Büro 1: 47,12 m²
Büro 2: 53,87 m²
Büro 3: 54,16 m²
Büro 4: 10,82 m²
Vorraum und WC: 8,52 m²
Besprechungsraum: 35,62 m²
Küche: 10,10 m²
Gesamtfläche: 222,32 m²
Es stehen einige kostenlose Parkplätze zur Verfügung. Außerhalb der Betriebszeiten sind die Parkplätze abgesperrt, Sie können aber bei Ein- und Ausfahrt elektronisch geöffnet oder geschlossen werden.
Mit dem Personenlift kommen Sie und Ihre Kunden bequem in den 2. Stock. Der Bezug ist ab 1.1.2025 möglich die bestehenden Möbel stehen kostenlos zur Verfügung.
Lage
Zentrale Lage in Bahnhofsnähe, guter öffenlticher Verkehrsanschluss.
Grundrisse

