Möblierte, kleine Wohnung in Vorchdorf mit Gemeinschaftsgarten














Objektbeschreibung
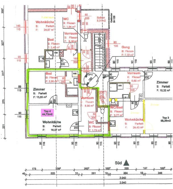
Diese zentral gelegene 43,56 m² 2-Zimmer-Wohnung im Grünen mit Gemeinschaftsgarten wird möbliert vermietet. Die Küche samt Geräten ist neuwertig. Raumaufteilung: Vorraum: 8,90 m²
Zimmer: 13,88 m²
BAD: 2,98 m²
WC: 1,73 m²
Wohnküche: 16,70 m² Der Mietpreis setzt sich wie folgt zusammen: Hauptmietzins Wohnung inkl. 10% USt. € 382,80 Heizkostenakonto inkl. 20% USt. € 54,00 Betriebskostenakonto inkl. 10% USt. € 94,60 Möbelmiete inkl. 10% USt. € 27,50 Gesamt brutto € 558,90 Es besteht die Möglichkeit einen zusätzlichen absperrbaren Lagerraum im Innenhof (ehemalige Garage, ca. 12m² für € 40,00/ Monat brutto) anzumieten.
Die Wohnung ist sofort verfügbar! Ein Supermarkt ist in unmittelbarer Nähe zu Fuß erreichbar, der Lokalbahnhof und die Autobahn sind über kurze Wege zu erreichen.
Lage
Ruhige Lage mit viel Grün und Voralpenblick
Grundrisse
